































Neap d.o.o je kontinuum kreativnosti pri izdelovanju projektov za vrhunske realizacije.
Dolgoletne izkušnje delimo s talentiranimi kolegi arhitekti in designerji ter se povezujemo z najboljšimi sodelavci konstrukterji, statiki in tehnologi. Smo v toku visoke tehnologije a spoštujemo praktičnost in preprostost.
Že v letu 2008 smo izdelali prvo dokumentacijo po BIM standardih.
Tehnologija nam je v oporo pri snovanju in nam omogoča kohezijo in integriteto projektov. Naše geslo je „kreacija, lepota, logika“.
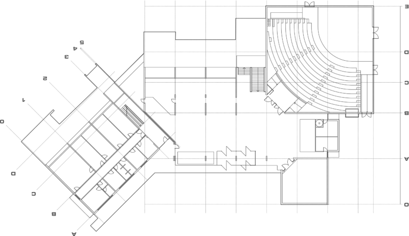
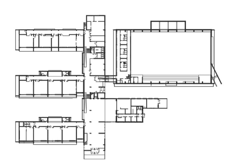
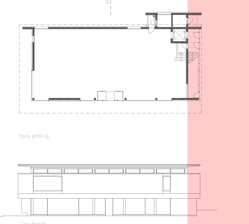
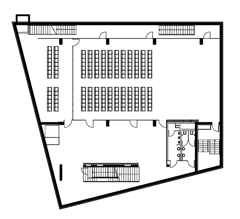
Načrtovali smo različne objekte, kjer je pomemben občutek za lepo in analitično znanje. Od urbanističnih celot, šol, bank, kulturnih centrov, sakralnih objektov, prenov dediščine, do unikatnih, inventivnih, sodobnih družinskih hiš in atraktivnih interijerjev, posameznih kosov opreme prostora, stolov, luči, nakita do prostorskih učinkov s katerimi pozitovno občutimo površine in prostor.
Značilnost naših zasnov so popolni izrisi objektov od zasnove do izvedbenih detajlov z natančni popisi in stroškovnimi preveritvami.
Pri izvajanju poskrbimo za učinkovit in strokoven nadzor.
Naša vizija je oblikovanje, izboljšanje in nadgradnja človekovega okolja s kreativno zasnovanimi objekti za udobno in srečno bivanje.
Izvedbe so v ponos investitorjem, smo kreatorji njihovih sanj.
